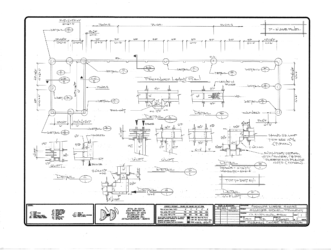
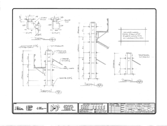
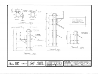
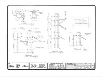
We just finished a project in Cleveland, OH. The forming systems are Mevalite and Symons hand set formwork, the combination works very well together. The supply company is Kuhlman construction products located in Akron, OH. The contractor was Rudolph Libbe Construction Co. they have offices in Ohio and Michigan.









