As a concrete forming and shoring supplier, providing our customers with accurate layouts is a critical process to service our customers. Additionally, timely layouts and takeoffs are critical, in oder to pull equipment needs together. Detail By Design has provided us with all three, and we consider Detail By Design our partner, and consider them an asset to our business.
Dale Andrassy
Managing Director- Unispan-USA
I use Detail by Design for Symons formwork because of the experience and customer service to make my job easier. Concrete work is hard enough and guys need to get finished the easiest and most economical way they can. Harry helps Mills Supply accomplish that through his dedication, hard work and attention to detail.
Alex Mills
Mills Supply
1100 South Ninth St
Louisville, KY 40203
cell: 502-643-7233
www.millssupply.net
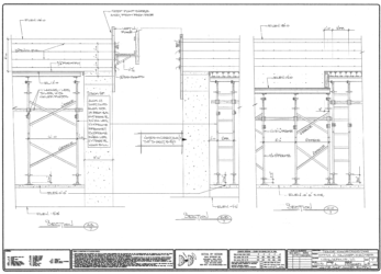
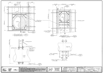
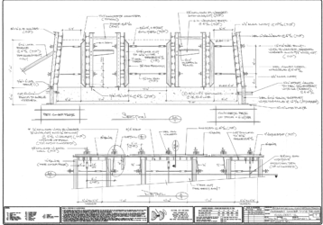
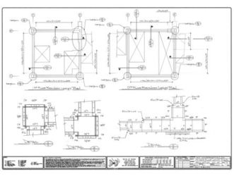
Our projects are often large, complex and demanding. An error in the formwork drawing could cost our company thousands. We never have to worry when DETAIL BY DESIGN prepares our layout drawings and material take-offs. Our jobs run smoothly and accurately because of D by D. The drawings they provide are highly detailed and yet easy to read. Perhaps most importantly, the drawings provided by Detail By Design are actually practical for the contractor to use in the field. Many other companies that detail don’t seem to understand the realities of the construction site which limit their drawings to merely conceptual. You never have to worry about that with Harry Stamaty. I would highly recommend DETAIL BY DESIGN to whoever needs any type of detailing. I believe that DETAIL BY DESIGN will impress anybody with the product they deliver.
Bill Kinniard-President American Concrete Solutions, Inc.
When it comes to a take off, layout or pull ticket, I would go to no other than Harry Stamaty. We are at AT-PAC, INC., have been using Harry for approximaely 10 years. The quality of perfection compares to no other that I have seen in my 15 years in the construction industry. The expertise he puts into his work is outstanding and very professional. The timely manner in which he returns a completed assignment with such precise calculations is amazing. The most amazing thing is that the cost of his work has saved me an enormous amount of money in job cost. I personally would refer anyone to Harry Stamaty.
John T. Jett AT-PAC Inc.-Sales Manager
Wolford Contractors Supply has used and will continue to use DETAIL BY DESIGN. Over the past five years we have come from a fledgling company to a viable business. What our concerns were during this period is whether or not we could maintain an edge on our certain level of customer service which would allow us to maintain an edge on our competition. By utilizing DETAIL BY DESIGN, we not only did that but were also able to extend our ability to handle much larger projects and to have a hands on Customer Service. Harry has always given us great service and his response time has been second to none. Harrys level of ability is very professional; he is accuate, legible and his drawings are easy to read. We here at Wolford Contractors Supply recommend DETAIL BY DESIGN wholeheartedly.
Steve Hardesty-Fairmont Banch Manager
























